Serio Planungsbüro GmbH
Ihr Partner für Architektur und Ingenieurwesen im Rhein-Main-Gebiet.
Seit 1992 verwirklichen wir private, gewerbliche und kommunale Bauvorhaben – individuell, kostensicher und nachhaltig.
Serio Planungsbüro GmbH
Ihr erfahrenes Architekturbüro aus Bad Vilbel
Willkommen bei der Serio GmbH. Seit 1992 stehen wir für architektonische Kompetenz, Verlässlichkeit und innovative Lösungen. Als etabliertes Architekturbüro für Frankfurt und die gesamte Rhein-Main-Region begleiten wir Bauherren von der ersten Idee bis zur Schlüsselübergabe. Unser Ziel ist es, Ihre Visionen mit höchster Präzision und Kostensicherheit zu realisieren – egal ob privater Wohntraum oder komplexes Gewerbeprojekt.
Abgeschlossene Projekte
QM Baufläche realisiert
Experten im Team
Jahre Erfahrung
Unsere Leistungen
Von der Idee bis zur Übergabe - zuverlässige Planung und Umsetzung
Architektur, Planung und Beratung
Sachverständigen-Tätigkeit & Gutachten
Serio Planungsbüro GmbH
Unsere Projekte Raum fur Visionen
Ein Einblick in unsere Bauvorhaben – von modernen Wohnhäusern bis hin zu komplexen Gewerbe- und öffentlichen Projekten.
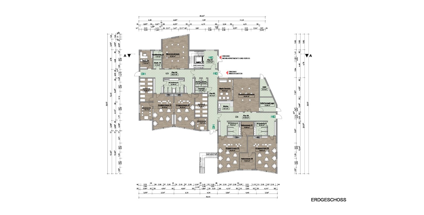
Nachhaltiges Neubaukonzept in Obertshausen: Kindergarten mit Waldgruppe
Projektbeschreibung
PLANUNGSKONZEPT FÜR EIN KINDERGARTEN MIT 4 GRUPPEN UND EINER WALDGRUPPE IN OBERTSHAUSEN
Bei dem geplanten Bauvorhaben handelt es sich um einen Neubau für einen Kindergarten, Büroflächen und Wohnapartments in Obertshausen. Die neue Ganztageseinrichtung bietet Platz für 4 Gruppen und einer Waldgruppe. Das dafür vorgesehene Teilgrundstück umfasst eine Grundfläche von ca. 2.706 m² Bei dem Baugrundstück handelt es sich um ein innerörtliches Grundstück mit altem Bestandsgebäude- und Baumbestand. Aufgrund der heutigen Anforderungen an Funktion und Gebäude ist ein Neubau an dieser Stelle erforderlich.
Entwurfserläuterung:
Der teils eingeschossige bzw. zweigeschossige Baukörper verfügt über zwei Vollgeschosse mit Flachdach und teils extensiver Dachbegrünung und. Fassadenelemente erhalten nachhaltige Konstruktionen. Im rückwärtigen Bereich öffnet sich das Gebäude in den Außenspielbereich der Kita. Der 2. Rettungsweg wird mittels großzügig dimensionierter Fluchtflachdachfläche sichergestellt. Diese dienen zugleich auch als direkter Gartenzugang. Im Eingangsbereich sind die Eltern- Wartezone als auch der räumlich abgetrennte Bewegungsraum angeordnet. Die Leitung ist in direkter Nähe gelegen. In einem abgetrennten Bereich auf dieser Ebene gibt es zwei U3-Gruppen. zwei weitere Ü3-Gruppen sind in einem weiteren abgetrennten Teil angeordnet. Hier befinden sich auch Aufbereitungsküche, Essbereich sowie ein Teil der Themen- und Funktionsräume für die größeren Kinder. Die übrigen Themenräume, wie auch Personalraum liegen unmittelbar in der Nähe. Abstellräume und Toiletten gibt es in allen Geschossen. Das Gebäude ist durch den Aufzug komplett barrierefrei erschlossen.
Planungskonzept VISUS
Projektbeschreibung
PLANUNGSKONZEPT VISUS – BOMMERSHEIMER STRASSE IN OBERUSEL
Allgemein stehen wir vor der großen Herausforderung, ausreichend bezahlbaren Wohnraum für die wachsende Bevölkerung in den Ballungsgebieten im Rhein-Main-Gebiet und überregional zu schaffen. Nachhaltigkeit und alternative Energiekonzepte spielen im Wohnungsbau eine immer größere Rolle. Somit leisten wir einen großen Anteil bzw. Beitrag zum Klimaschutz.
Die städtebauliche Konzeption orientiert sich an der Idee einer klassischen Wohnanlage als offene Bebauung.
Prägendes architektonisches Gestaltungselement wird die Gliederung der Fassaden durch Vor- und Rücksprünge, welche zusätzlich durch zurückspringenden Loggien verstärkt wird. Die zwei bis dreigeschossigen Gebäude zzgl. Staffelgeschoß sind größtenteils als Wohngebäude konzipiert, beginnend von kleinen 1,5-Zimmer-Wohnungen bis hin zu großen 5-Zimmer-Wohnungen. Alle Wohnungen sind barrierefrei. Alle Gebäude erhalten Staffelgeschosse mit teilweise parkseitigen Dachterrassen. Im gesamten Baugebiet bilden die angrenzenden Gebäude einen Innenhof, welcher als begrünte Gemeinschaftsfläche mit integrierten Spielflächen und Feuchtbiotopen vorgesehen ist. An den Grenzen des Baugebiets orientieren sich als Ergänzung zur anliegenden öffentlichen Kinderspielplatz eine Kindertagesstätte und gegenüberliegend eine Betreute Wohnanlage. Ggf. können auch ein Arztzentrum und eine Geriatrie die Anlage vollenden. PKW-Stellplätze befinden sich komplett unterirdisch in einer Tiefgarage und werden teilweise für die Ausstattung mit Elektro-Ladesäulen vorgerüstet. Besucherstellplätze sind im oberen Feld der Gesamtanlage vorgesehen.
Neubau einer Wohnanlage in Bad Kreuznach
Projektbeschreibung
NEUBAU EINER WOHNANLAGE IN BAD KREUZNACH
Das komplett versiegelte Grundstück mit Gewerbeflächen wird ordnungsgemäß abgerissen und entsorgt bzw. freigeräumt. Die Wohnungsbaugenossenschaft hat sich zu einem Neubau der o.g. Anlage entschlossen um dringend notwendige Wohnräume und ausreichende Stellplätze zu schaffen. Das neue Gebäude wird in Flachdach inkl. Solarthermie und in konventioneller Bauart erstellt. Die Außenhülle für den Neubau nach aktueller Energieeinsparverordnung (GeG). Alle nichttragenden Innenwände als Gipskarton-Ständerwände. Die Beheizung wird durch eine zentrale Luft-Wasser-Wärmepumpe gewährleistet. Alle tragenden Bauteile werden gemäß statischen- und brandschutztechnischen-Erfordernissen der GK 4 ausgeführt. Wärme- und Schallschutz nach Berechnungsgrundlagen.
Es werden zu 100% vermietbare Wohnungen durch die Genossenschaft entstehen. Hiervon werden 20% Sozialgebundene Wohnungen sein.
Die Wohnungsaufteilungen werden zu 40% 2 Zimmerwohnungen, zu 35% 3 Zimmerwohnungen und ca. 25% 4 Zimmerwohnungen sein.
Warum Serio Planungsburo GmbH?
Ihr starker Partner für Architektur und Planung
Der Prozess
In 4 Schritten – zu Ihrem Bauvorhaben
Von der ersten Idee bis zur fertigen Immobilie – so begleiten wir Sie Schritt für Schritt.
01
Erstgespräch & Bedarfsklärung
Wir analysieren Ihre Wünsche und prüfen die Rahmenbedingungen.
02
Planung & Konzeptentwicklung
Individuelle Entwürfe und präzise Ausarbeitung aller Planungsphasen.
03
Genehmigung & Umsetzung
Wir kümmern uns um Bauantrag, Behördenkontakt und Bauüberwachung.
04
Fertigstellung & Ubergabe
Termingerechte Übergabe Ihres Projekts – bezugsfertig und geprüft.
Serio Planungsbüro GmbH
Wir suchen Baugrundstücke
Zur Realisierung neuer Bauprojekte sind wir laufend auf der Suche nach geeigneten Grundstücken im Rhein-Main-Gebiet und Umgebung. Ob für Einfamilienhäuser, Doppel- oder Reihenhäuser oder auch für den Geschosswohnungsbau – wir interessieren uns für bebaubare Flächen ab ca. 300 bis 5.000 Quadratmeter.
Auch GruGrundstücket Entwicklungspotenzial oder Abrissobjekte sind fur uns von Interesse. Wenn Lage, Größe und Preis-Leistungs-Verhältnis stimmen, treten wir gerne auch als Direktkäufer auf. Dank unserer langjährigen Erfahrung in der Projektentwicklung und unserer finanziellen Abhängigkeit garantieren wir Ihnen eine zügige, professionelle und diskrete Abwicklung – vom Erstkontakt bis zum Abschluss.
Sie möchten ein Grundstück verkaufen oder haben ein passendes Objekt im Blick? Dann freuen wir uns auf Ihre Kontaktaufnahme. Wir sichern Ihnen eine faire Bewertung und schnelle Rückmeldung zu.
Kundenbewertungen
Echte Erfahrungen unserer Kunden aus gemeinsamen Projekten
Serio Planungsbüro GmbH
Lassen Sie uns Ihr Bauvorhaben gemeinsam verwirklichen.
Ob privates Wohnhaus, gewerbliches Projekt oder öffentliche Einrichtung – wir begleiten Sie von der Idee bis zur Realisierung. Kontaktieren Sie uns jetzt fur ein unverbindliches Erstgespräch – wir freuen uns auf Ihre Anfrage!




















